This project is currently under development; what is presented here is a draft.

L’hôtel du Vivant (Work in progress)

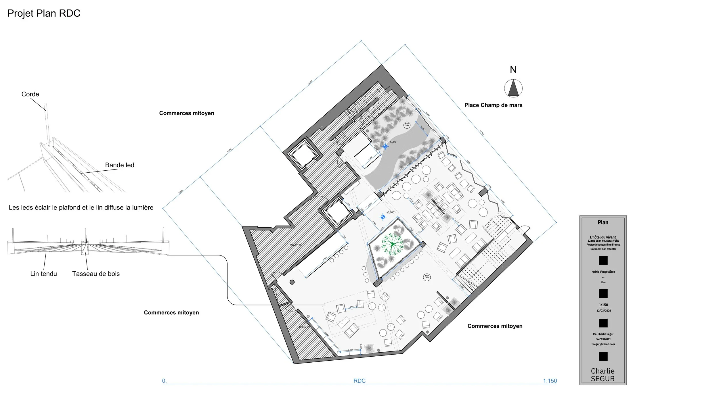
The hotel no longer simply means sleeping, but truly “dwelling,” in the sense described by Heidegger: caring for a space in which it becomes possible to resonate with matter (raw concrete), with cycles (the light of the atrium), and with others (through the café and the coworking space). The project is not an accidental deviation from hotel standards, but rather the deliberate metabolization of a disused structure into a living organism.

Hôtel du Vivant is located at 12 rue Jean Fougerat, in a strategic area of Angoulême, within a Remarkable Heritage Site. Although it lies in a zone protected by a PSMV (Plan de Sauvegarde et de Mise en Valeur), the structure itself is a modern building made of concrete and glass, enlarged between 1973 and 1974. Classified as a Type B building, it may be preserved or modified to improve its functionality.

Located in the Champ de Mars district, it occupies an important position, adjacent to Galeries Lafayette and facing the Place du Champ de Mars.